Bu hizmetler ve teknolojiler Herando’nun çalışması için zorunludur ve örneğin güvenlikle ilgili işlevleri mümkün kılar. Ayrıca bu çerezler sayesinde profilinizde oturumun açık kalmasını isteyip istemediğinizi anlayarak, bir sonraki ziyaretinizde hizmetlerimizi daha hızlı sunabiliriz.
Bu çerezler olmadan web sitesi düzgün şekilde çalıştırılamaz. Bu nedenle devre dışı bırakılamaz.
| Çerez adı | Sağlayıcı / süre | Amaç |
|---|---|---|
| herando | Herando / Oturum | Kullanıcının oturumunun açık kalması için gereklidir. Yeniden giriş yapmadan korumalı alanlara erişim sağlar. |
| herando-backend | Herando / Oturum | Backend alanında kimlik doğrulamayı ve korumalı işlevler için erişim kontrolünü sağlar. |
| frontend | Herando / 2 saat | Frontend oturumlarını sürdürmek ve yeniden giriş yapılmasını önlemek için gereklidir. |
| frontend_cid | Herando / 2 saat | Frontend alanında mevcut oturumu onay (rıza) kimliği ile ilişkilendirir. |
| cc | Herando / 1 yıl | Çerez onay ayarlarınızı saklar. |
| cid | Herando / 1 yıl | Çerez onayınızı belgelemek için benzersiz bir kimlik saklar. |
| _GRECAPTCHA | Google reCAPTCHA / 6 ay | Otomatik erişimler, spam, dolandırıcılık ve kötüye kullanıma karşı korur. |
Hukuki dayanak:
İşleme, GDPR Madde 6(1)(f) (web sitesinin güvenli ve işlevsel şekilde işletilmesine ilişkin meşru menfaat) ile § 165(3) TKG (AT) / § 25(2) TTDSG (DE) hükümlerine dayanır.
Hizmetlerimizi daha da geliştirmek için istatistik ve analiz amaçlı anonimleştirilmiş veriler topluyoruz. Bu veriler sayesinde web sitemizin belirli sayfalarının ziyaretçi sayılarını ve etkisini ölçebilir ve içeriklerimizi optimize edebiliriz.
Sağlayıcılar:
Google Ireland Limited, Dublin, İrlanda
Meta Platforms Ireland Ltd., Dublin, İrlanda
Amaç:
Kullanıcı davranışlarının analizi, erişim ölçümü, içerik optimizasyonu ve sayfa kullanımının değerlendirilmesi.
İşlenen veriler:
IP adresi (kısaltılmış/anonimleştirilmiş), cihaz ve tarayıcı bilgileri, ziyaret süresi, sayfa görüntülemeleri, etkileşimler, yönlendiren URL.
Hukuki dayanak:
GDPR Madde 6(1)(a) uyarınca açık rıza.
Üçüncü ülkelere aktarım:
Üçüncü ülkelere (örn. ABD) aktarım mümkündür. Sağlayıcılar EU-US Data Privacy Framework kapsamında sertifikalıdır.
Saklama süresi:
Aksi belirtilmedikçe 14 aya kadar.
| Çerez adı | Sağlayıcı / süre | Amaç |
|---|---|---|
| _ga | Google Analytics / 2 yıl | Benzersiz kullanıcıların tanımlanması |
| _gid | Google Analytics / 24 saat | Kullanıcı davranış analizi |
| _gat_* | Google Analytics / 1 dakika | İstek oranı sınırlandırma |
| _gat_UA-* | Google Analytics / 1 dakika | Veri aktarım kontrolü |
| OTZ | Google Analytics / 1 ay | Web sitesi trafiği hakkında toplu bilgiler |
| AEC | Google / 6 ay | Spam, dolandırıcılık ve kötüye kullanıma karşı koruma |
| NID | Google / 10 yıla kadar | Harici içeriklerin gömülmesi (örn. YouTube) |
Onayınızı istediğiniz zaman “çerez ayarları” üzerinden geri alabilirsiniz.
1.990.000,00 €
Inhaber: Franz Gobec RR Bgm.a.D.
staatl. gepr. und konzess. Immobilientreuhänder, Immobilienmakler, Immobilienverwalter und Bauträger,
Mitglied des Ehrenschiedsgerichtes Tirol
Im Gries 27
A-6370 Kitzbühel
Mobil: +43 676 7047120
Fax: +43 5356 67677
E-Mail: office@kitzimmo.at
IBAN AT152050500000031195
BIC SPKIAT2K
Bezirkshauptmannschaft Kitzbühel
UID: ATU60133411
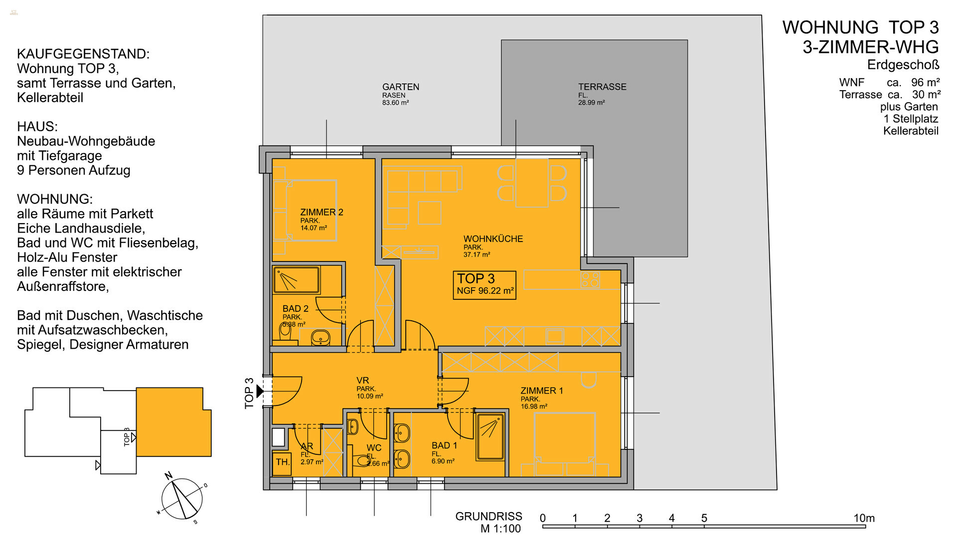
| Gayrimenkul türü | Daire |
| Yaşam alanı | 96 m² |
| Katlar | 4 |
| Odalar | 3 |
| Banyo | 2 |
| Donanım | Lüks |
| Mülkün durumu | İlk kullanım |
| Yapım yılı | 2025 |
| Isıtma | Yerden ısıtma |
| Enerji kaynağı | Jeotermal enerji |
5 ZENTRALE NEUBAUWOHNUNGEN - ZEITLOSES DESIGN IM ZENTRUM VON KITZBÜHEL
DATEN
FAKTEN
Fertigstellung Herbst 2025, Wohnfläche von ca. 52 m² bis 133 m², 1 Schlafzimmer bis 2/3 Schlafzimmer, hochwertige Ausstattung, Raffstore, Erdwärme, Eichenböden, 3-fach-Verglasung, Tiefgarage, zentrale Lage
EINHEITEN
Stellplatz
CHARAKTERISTIK
Dieses exklusive Wohnprojekt im Herzen von Kitzbühel vereint modernes Wohnen mit traditionellem Tiroler Stil – eine perfekte Symbiose aus zeitgemäßer Architektur und alpinem Charme.
In zentraler Lage, mitten im pulsierenden Leben der berühmten Gamsstadt, sind alle wichtigen Einrichtungen wie Restaurants, Geschäfte und Freizeiteinrichtungen bequem fußläufig erreichbar.
Genauso wie die weltberühmte Hahnenkammbahn und die Streif. Hier finden Sie Ihr Zuhause im Herzen von Kitzbühel – perfekt für all jene, die urbanes Leben in einer der begehrtesten Alpendestinationen mit alpinem Flair genießen möchten.
Das Projekt umfasst insgesamt fünf hochwertige Wohneinheiten, die in Größen von 52 m² bis 133 m² variieren.
Vom charmanten Erdgeschoss bis hin zum Obergeschoss ist für jeden Geschmack was dabei. Jede Wohnung besticht durch intelligente Grundrisse, die eine optimale Raumnutzung und maximalen Wohnkomfort gewährleisten.
Große Fensterfronten sorgen für lichtdurchflutete Räume und bieten Ausblicke auf die umliegende Bergwelt. Modernste Haustechnik, darunter eine umweltfreundliche Erdwärmeheizung, sorgt für nachhaltiges und energieeffizientes Wohnen.
Eine hauseigene Tiefgarage bietet bequemen Parkraum, während der Tiroler Baustil mit zeitgemäßen Elementen das Gesamtbild dieses Wohnprojekts abrundet.
3,0 %