1.700.000,00 €
| Yatırım amaçlı gayrimenkuller | Ticari |
| Yaşam alanı | 933 m² |
| Arsa alanı | 5.560 m² |
| Katlar | 3 |
| Kalite | Yeni gibi |
| Mülk şekli | Renoviert |
| Yapım yılı | 1920 |
| İnşaat aşaması | Yapım aşamasında |
| Isıtma | Merkezi ısıtma sistemi |
| Enerji kaynağı | Gaz |
| KDV | artı |
Immobilie mit großem Grundstück zur vielseitigen Nutzung und Geschäftsmodellen
Raumaufteilung & Nutzungspotenzial
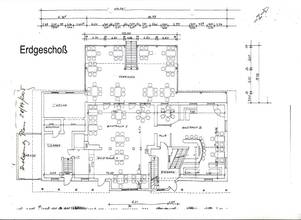
Erdgeschoss (ca. 380 m²):
Das Erdgeschoss ist als Gastronomiefläche bereits vorbereitet, bietet jedoch zahlreiche Optionen für eine Nutzungserweiterung oder Umgestaltung. Die großzügige Fläche eignet sich nicht nur für den Betrieb eines Restaurants, sondern auch für Eventräume, Seminarräume oder einen Gesundheitsbereich. Mehrere Tresenbereiche und eine Vielzahl an Outdooreinrichtungen stellen sicher, dass die Immobilie von Anfang an vielseitig genutzt werden kann.
Obergeschoss (ca. 263 m²):
Mit einer Fläche von rund 263 m² bietet das Obergeschoss ideale Voraussetzungen für die Beherbergung von Gästen. Es könnte als Hotel, Pension, Monteurwohnung oder für kurzfristige Vermietung genutzt werden, was zusätzliche Einkommenspotenziale eröffnet.
Untergeschoss (ca. 290 m²):
Das Untergeschoss bietet eine Einliegerwohnung (ca. 86 m²) sowie zusätzliche Nutzflächen, die sich für Lagerräume, Büro, Personalunterkünfte oder als zusätzliche Geschäftsräume eignen.
70 % Fertigstellung – Steigern Sie den Wert mit Ihrem Konzept
Die Immobilie (Innenausbau) ist zu ca. 70 % fertiggestellt und bietet dem Käufer oder Investor die Möglichkeit, den Innenausbau individuell zu gestalten und das Potenzial voll auszuschöpfen. Sie erhalten somit die flexible Grundlage, die Immobilie nach eigenen Vorstellungen fertigzustellen und von höheren Mietrenditen oder einer Wertsteigerung zu profitieren. Die vorhandene Infrastruktur (Heizung, Kläranlage, Brunnen, Gasversorgung) sorgt für eine schnelle Inbetriebnahme und minimiert die Betriebs- und Investitionskosten für die notwendige Anpassungen.
Teilmietkauf möglich - Einmalzahlung 700.000,- € Details hierzu auf Anfrage
Strategische Lage mit hohem Potenzial
Die Immobilie liegt inmitten eines Naturschutzgebiets, was sie zu einem besonders ruhigen und attraktiven Standort für Erholungseinrichtungen oder Gastronomie macht. Die Nähe zur Landesgartenschau 2026 garantiert eine erhöhte Besucherfrequenz und steigert somit die wirtschaftliche Attraktivität der Region. Zudem ist die A2 in kurzer Entfernung erreichbar, was sowohl für den Verkehr als auch für Liefer- und Kundenströme von Vorteil ist.
Fazit:
Diese Gewerbeimmobilie bietet eine vielseitige und lukrative Investitionsmöglichkeit für Immobilienentwickler und Investoren, die ein langfristiges Renditeobjekt suchen oder ein innovatives Nutzungskonzept realisieren möchten. Mit ihrem großen Flächenangebot, der flexiblen Nutzungsmöglichkeit und dem weiteren Entwicklungspotenzial stellt sie eine wertstabile Grundlage für eine zukunftsorientierte Investition dar.
Nehmen Sie Kontakt auf, um weitere Informationen zu erhalten und von den potenziellen Renditen und der anhaltenden Wertsteigerung zu profitieren
Weitere Informationen erhalten Sie auf Anfrage vom Eigentümer