Questi servizi e tecnologie sono indispensabili per il funzionamento di Herando e consentono, ad esempio, funzionalità rilevanti per la sicurezza. Inoltre, tramite questi cookie possiamo riconoscere se desideri rimanere connesso al tuo profilo, così da rendere i nostri servizi disponibili più rapidamente in caso di nuova visita.
Senza questi cookie il sito non può funzionare correttamente. La disattivazione non è quindi possibile.
| Nome cookie | Fornitore / durata | Finalità |
|---|---|---|
| herando | Herando / Sessione | Necessario per mantenere l’accesso dell’utente. Consente l’accesso alle aree protette senza nuovo login. |
| herando-backend | Herando / Sessione | Garantisce l’autenticazione nell’area backend e il controllo degli accessi alle funzioni protette. |
| frontend | Herando / 2 ore | Necessario per mantenere le sessioni nel frontend ed evitare un nuovo login. |
| frontend_cid | Herando / 2 ore | Associa la sessione corrente all’ID di consenso nell’area frontend. |
| cc | Herando / 1 anno | Memorizza le tue impostazioni di consenso ai cookie. |
| cid | Herando / 1 anno | Memorizza un ID univoco per documentare il tuo consenso ai cookie. |
| _GRECAPTCHA | Google reCAPTCHA / 6 mesi | Protegge il sito da accessi automatizzati, spam, frodi e abusi. |
Base giuridica:
Il trattamento si basa sull’art. 6, par. 1, lett. f) GDPR (legittimo interesse a un funzionamento sicuro ed efficiente del sito) nonché su § 165, c. 3 TKG (AT) / § 25, c. 2 TTDSG (DE).
Per migliorare ulteriormente i nostri servizi, raccogliamo dati anonimizzati per finalità statistiche e di analisi. Grazie a questi dati possiamo, ad esempio, misurare il numero di visitatori e l’efficacia di determinate pagine del nostro sito web e ottimizzare i nostri contenuti.
Fornitori:
Google Ireland Limited, Dublino, Irlanda
Meta Platforms Ireland Ltd., Dublino, Irlanda
Finalità:
Analisi del comportamento degli utenti, misurazione della copertura, ottimizzazione dei contenuti e valutazione dell’uso delle singole pagine.
Dati trattati:
Indirizzo IP (ridotto/anonimizzato), informazioni su dispositivo e browser, durata visita, visualizzazioni di pagina, interazioni, URL di provenienza.
Base giuridica:
Consenso ai sensi dell’art. 6, par. 1, lett. a GDPR.
Trasferimento verso paesi terzi:
Possibile trasferimento verso paesi terzi (es. USA). Fornitori certificati EU-US Data Privacy Framework.
Periodo di conservazione:
Fino a 14 mesi salvo diversa indicazione.
| Nome cookie | Fornitore / durata | Finalità |
|---|---|---|
| _ga | Google Analytics / 2 anni | Identificazione degli utenti unici |
| _gid | Google Analytics / 24 ore | Analisi del comportamento degli utenti |
| _gat_* | Google Analytics / 1 minuto | Limitazione della frequenza delle richieste |
| _gat_UA-* | Google Analytics / 1 minuto | Controllo della trasmissione dei dati |
| OTZ | Google Analytics / 1 mese | Informazioni aggregate sul traffico del sito |
| AEC | Google / 6 mesi | Protezione da spam, frodi e abusi |
| NID | Google / fino a 10 anni | Integrazione di contenuti esterni (es. YouTube) |
| _fbp | Meta (Facebook) / 6 mesi | Analisi delle visualizzazioni di pagina |
| datr | Meta (Facebook) / 9 mesi | Sicurezza e prevenzione delle frodi |
| locale | Meta (Facebook) / 1 settimana | Memorizzazione della lingua |
| oo | Meta (Facebook) / 13 mesi | Memorizzazione dello stato di opt-out |
| sb | Meta (Facebook) / 11 mesi | Identificazione del browser |
| m_pixel_ratio | Meta (Facebook) / Sessione | Test delle prestazioni del sito |
Puoi revocare il tuo consenso in qualsiasi momento tramite le “impostazioni dei cookie”.
2.536.000,00 €
Inhaber: Franz Gobec RR Bgm.a.D.
staatl. gepr. und konzess. Immobilientreuhänder, Immobilienmakler, Immobilienverwalter und Bauträger,
Mitglied des Ehrenschiedsgerichtes Tirol
Im Gries 27
A-6370 Kitzbühel
Mobil: +43 676 7047120
Fax: +43 5356 67677
E-Mail: office@kitzimmo.at
IBAN AT152050500000031195
BIC SPKIAT2K
Bezirkshauptmannschaft Kitzbühel
UID: ATU60133411
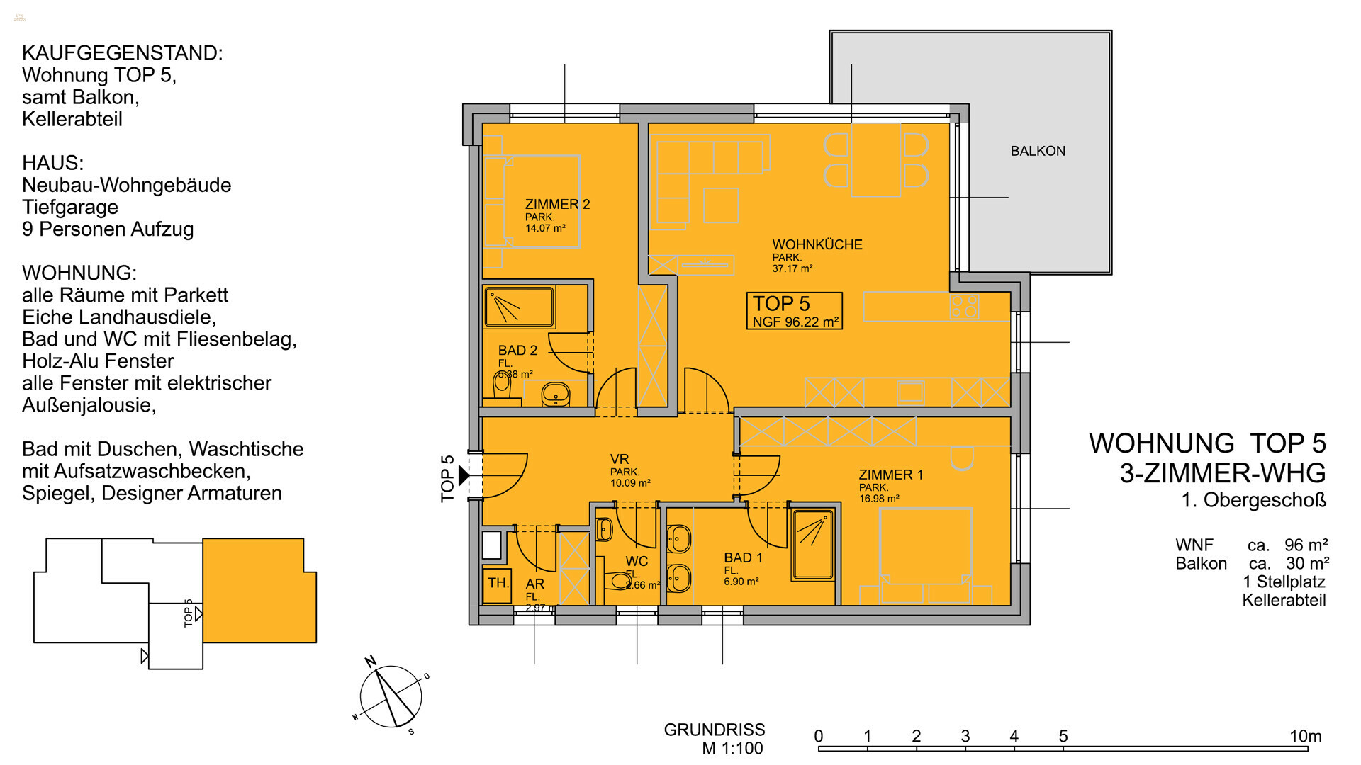
| Tipo di immobile | Appartamento |
| Superficie abitabile | 96 m² |
| Piani | 4 |
| Camere da letto | 3 |
| Bagni | 2 |
| Qualità | Ristrutturato |
| Forma dell'immobile | Erstbezug |
| Anno di costruzione | 2025 |
| Riscaldamento | Riscaldamento elettrico |
| Fonte energetica | Geotermico |
5 ZENTRALE NEUBAUWOHNUNGEN - ZEITLOSES DESIGN IM ZENTRUM VON KITZBÜHEL
DATEN
FAKTEN
Fertigstellung Herbst 2025, Wohnfläche von ca. 52 m² bis 133 m², 1 Schlafzimmer bis 2/3 Schlafzimmer, hochwertige Ausstattung, Raffstore, Erdwärme, Eichenböden, 3-fach-Verglasung, Tiefgarage, zentrale Lage
EINHEITEN
Stellplatz
CHARAKTERISTIK
Dieses exklusive Wohnprojekt im Herzen von Kitzbühel vereint modernes Wohnen mit traditionellem Tiroler Stil – eine perfekte Symbiose aus zeitgemäßer Architektur und alpinem Charme.
In zentraler Lage, mitten im pulsierenden Leben der berühmten Gamsstadt, sind alle wichtigen Einrichtungen wie Restaurants, Geschäfte und Freizeiteinrichtungen bequem fußläufig erreichbar.
Genauso wie die weltberühmte Hahnenkammbahn und die Streif. Hier finden Sie Ihr Zuhause im Herzen von Kitzbühel – perfekt für all jene, die urbanes Leben in einer der begehrtesten Alpendestinationen mit alpinem Flair genießen möchten.
Das Projekt umfasst insgesamt fünf hochwertige Wohneinheiten, die in Größen von 52 m² bis 133 m² variieren.
Vom charmanten Erdgeschoss bis hin zum Obergeschoss ist für jeden Geschmack was dabei. Jede Wohnung besticht durch intelligente Grundrisse, die eine optimale Raumnutzung und maximalen Wohnkomfort gewährleisten.
Große Fensterfronten sorgen für lichtdurchflutete Räume und bieten Ausblicke auf die umliegende Bergwelt. Modernste Haustechnik, darunter eine umweltfreundliche Erdwärmeheizung, sorgt für nachhaltiges und energieeffizientes Wohnen.
Eine hauseigene Tiefgarage bietet bequemen Parkraum, während der Tiroler Baustil mit zeitgemäßen Elementen das Gesamtbild dieses Wohnprojekts abrundet.
3,0 %