Herando Logo
Unbefristet vermietete 3-Zimmer Wohnung, Nähe Westbahnhof
Thumbnail von Unbefristet vermietete 3-Zimmer Wohnung, Nähe Westbahnhof Thumbnail von Unbefristet vermietete 3-Zimmer Wohnung, Nähe Westbahnhof Thumbnail von Unbefristet vermietete 3-Zimmer Wohnung, Nähe Westbahnhof
Nahlásit inzerát

Unbefristet vermietete 3-Zimmer Wohnung, Nähe Westbahnhof

312.000,00 €

Rakousko Rakousko

Logo von Verkäufer
Společnost: Lifestyle Properties
Město: 1010 Wien
Země: Österreich
Nahlásit inzerát

Technická data

Typ nemovitosti Byt
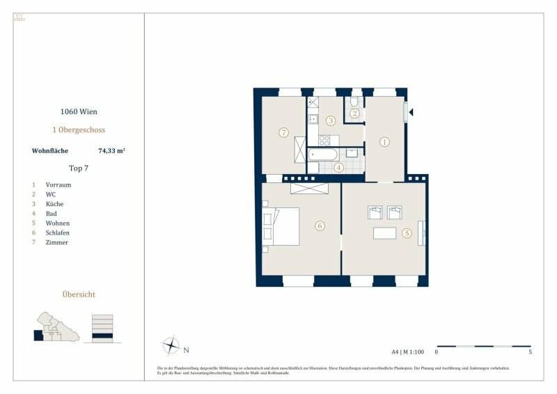
Obytná plocha 74,33 m²
Ložnice 3
Koupelny 1
Rok výstavby 1897
Vytápění Plynové topení
Zdroj energie Plyn

Popis od prodejce

Im Falle der Notwendigkeit einer Fremdfinanzierung Ihrer Wunschimmobilie ermittelt unser Wohnbau-Finanzierungsexperte gerne die optimale Finanzierungslösung und findet das passende Zins- und Konditionsangebot für Sie. Er vergleicht die aktuellen Angebote aller relevanten Banken und Bausparkassen. Der Angebotsvergleich kann aus einem Portfolio von über 120 Banken erfolgen. Das Erstgespräch ist für Sie kostenfrei und unverbindlich, gerne auch bei Ihnen vor Ort. So sparen Sie Ihre wertvolle Zeit und erhalten eine professionelle und unabhängige Finanzierungslösung vom Spezialisten. Sprechen Sie uns wegen eines Termins gerne an!

Zum Verkauf steht eine klassische unbefristet vermietete 3-Zimmer Wohnung in attraktiver Lage des 6. Bezirks.






    • attraktiver Einkaufspreis für zukünftige Wertsteigerungen





    • regelmäßige Einnahmen sofort nach Kauf





    • aktueller Netto-Hauptmietzins: EUR 648,81 / Monat





    • derzeitige Rendite vor Nebenkosten von 2,50 %





    • Werthaltigkeit der Immobilie





    • Indexierte Mietanpassung





    • steuerliche Vorteile





    • bei Freiwerden der Wohnung marktkonforme Miete / Erhöhung der Rendite





    • Perspektive auf Eigennutzung oder gewinnbringenden Weiterverkauf





Diese Immobilie eignet sich hervorragend als mittel- bis langfristiges Investment mit solidem Entwicklungspotenzial.
Bitte beachten Sie: Aufgrund des bestehenden Mietverhältnisses ist eine Besichtigung derzeit nicht möglich. Gerne lassen wir Ihnen bei ernsthaftem Interesse - vor Kaufanbotlegung - weitere vertraulichen Dokumente zu dieser Liegenschaft zukommen, welche nicht veröffentlicht werden dürfen.
Das Gebäude erstreckt sich über vier Regelgeschoße sowie ein ausgebautes Dachgeschoß und bietet eine vielfältige Auswahl an Wohnungen. Einige Einheiten befinden sich in gepflegtem Gebrauchtzustand, während andere hochwertig saniert wurden.


Die Lage überzeugt durch ihre ausgezeichnete Infrastruktur. In direkter Umgebung befinden sich zahlreiche Einkaufsmöglichkeiten, Cafés, Restaurants und kulturelle Einrichtungen – allen voran die Mariahilfer Straße als bedeutendste Einkaufsmeile Wiens. Die öffentliche Verkehrsanbindung ist hervorragend, mit U-Bahn-Stationen der Linie U3 in Gehweite sowie mehreren Straßenbahn- und Buslinien in der Nähe. Auch der Westbahnhof ist schnell erreichbar und sorgt für optimale nationale und internationale Anbindung.
Zudem bietet das Umfeld ein umfassendes Angebot an Nahversorgung, medizinischer Betreuung sowie Bildungs- und Betreuungseinrichtungen für Kinder. Die Nähe zu beliebten Erholungs- und Freizeitangeboten wie dem MuseumsQuartier oder dem Burggarten rundet die hohe Lebensqualität dieser Adresse ab.
Die Vertragserrichtung und Treuhandabwicklung ist gebunden an die Kanzlei Mag. Schreiber A-1010 Wien, Schottenring 16. Die Kosten betragen 1,5 % des Kaufpreises zzgl. 20 % USt. sowie Barauslagen und Beglaubigung. Bei Fremdfinanzierung erhöht sich das Honorar auf 1,8 % vom Kaufpreis zzgl. 20 % USt., Barauslagen und Beglaubigung.
Für Besichtigungsmöglichkeiten und nähere Informationen stehen wir Ihnen gerne zur Verfügung.
Frau Marie-Louise Eisenburger


national - Tel: 0676 605 9800


international - Tel.: +43 676 605 9800


e-mail: eisenburger@lifestyle-properties.at
Wir weisen darauf hin, dass zwischen dem Vermittler und dem zu vermittelnden Dritten ein familiäres oder wirtschaftliches Naheverhältnis besteht.
Der Vermittler ist als Doppelmakler tätig.

Tyto nemovitosti by vás mohly také zajímat

Další nemovitosti tohoto prodejce

Zobrazit vše