Estos servicios y tecnologías son imprescindibles para el funcionamiento de Herando y permiten, por ejemplo, funcionalidades relacionadas con la seguridad. Además, mediante estas cookies reconocemos si desea mantenerse conectado, para poner nuestros servicios a su disposición más rápidamente en una visita posterior.
Sin estas cookies, el sitio web no puede funcionar correctamente. Por lo tanto, no es posible desactivarlas.
| Nombre de la cookie | Proveedor / duración | Finalidad |
|---|---|---|
| herando | Herando / Sesión | Necesaria para mantener la sesión iniciada. Permite acceder a áreas protegidas sin volver a iniciar sesión. |
| herando-backend | Herando / Sesión | Garantiza la autenticación en el backend y el control de acceso a funciones protegidas. |
| frontend | Herando / 2 horas | Necesaria para mantener sesiones en el frontend y evitar volver a iniciar sesión. |
| frontend_cid | Herando / 2 horas | Asigna la sesión actual al ID de consentimiento en el frontend. |
| cc | Herando / 1 año | Guarda su configuración de consentimiento de cookies. |
| cid | Herando / 1 año | Guarda un ID único para documentar su consentimiento de cookies. |
| _GRECAPTCHA | Google reCAPTCHA / 6 meses | Protege el sitio contra accesos automatizados, spam, fraude y abuso. |
Base legal:
El tratamiento se basa en el art. 6(1)(f) del RGPD (interés legítimo en un funcionamiento seguro y correcto del sitio) y en § 165(3) TKG (AT) / § 25(2) TTDSG (DE).
Para mejorar continuamente nuestros servicios, recopilamos datos anonimizados con fines estadísticos y analíticos. Estos datos nos permiten, por ejemplo, medir el número de visitantes y la eficacia de determinadas páginas de nuestro sitio web y optimizar nuestros contenidos.
Proveedores:
Google Ireland Limited, Dublín, Irlanda
Meta Platforms Ireland Ltd., Dublín, Irlanda
Finalidad:
Análisis del comportamiento de los usuarios, medición del alcance, optimización de contenidos y evaluación del uso de páginas individuales.
Datos tratados:
Dirección IP (acortada/anonimizada), información del dispositivo y navegador, duración de la visita, páginas vistas, interacciones, URL de referencia.
Base legal:
Consentimiento conforme al art. 6(1)(a) del RGPD.
Transferencia a terceros países:
No puede descartarse la transferencia a terceros países (p. ej., EE. UU.). Proveedores certificados bajo el EU-US Data Privacy Framework.
Periodo de conservación:
Hasta 14 meses salvo indicación contraria.
| Nombre de la cookie | Proveedor / duración | Finalidad |
|---|---|---|
| _ga | Google Analytics / 2 años | Identificación de usuarios únicos |
| _gid | Google Analytics / 24 horas | Análisis del comportamiento de los usuarios |
| _gat_* | Google Analytics / 1 minuto | Limitación de la tasa de solicitudes |
| _gat_UA-* | Google Analytics / 1 minuto | Control de la transmisión de datos |
| OTZ | Google Analytics / 1 mes | Información agregada del tráfico web |
| AEC | Google / 6 meses | Protección contra spam, fraude y abusos |
| NID | Google / hasta 10 años | Integración de contenidos externos (p. ej. YouTube) |
| _fbp | Meta (Facebook) / 6 meses | Análisis de visualizaciones de página |
| datr | Meta (Facebook) / 9 meses | Seguridad y prevención del fraude |
| locale | Meta (Facebook) / 1 semana | Almacenamiento del idioma |
| oo | Meta (Facebook) / 13 meses | Almacenamiento del estado de exclusión |
| sb | Meta (Facebook) / 11 meses | Identificación del navegador |
| m_pixel_ratio | Meta (Facebook) / Sesión | Pruebas de rendimiento del sitio web |
Puede retirar su consentimiento en cualquier momento a través de la “configuración de cookies”.
1.490.000,00 €
Inhaber: Franz Gobec RR Bgm.a.D.
staatl. gepr. und konzess. Immobilientreuhänder, Immobilienmakler, Immobilienverwalter und Bauträger,
Mitglied des Ehrenschiedsgerichtes Tirol
Im Gries 27
A-6370 Kitzbühel
Mobil: +43 676 7047120
Fax: +43 5356 67677
E-Mail: office@kitzimmo.at
IBAN AT152050500000031195
BIC SPKIAT2K
Bezirkshauptmannschaft Kitzbühel
UID: ATU60133411
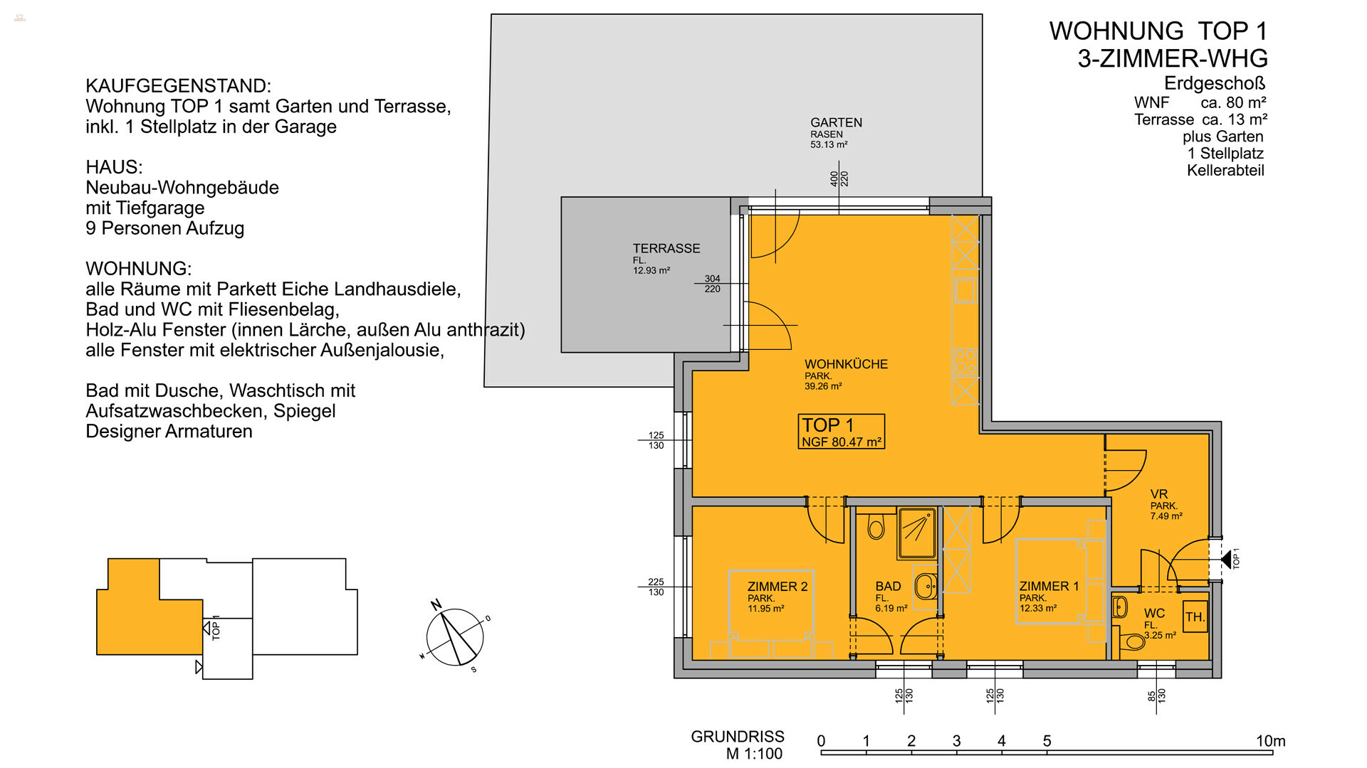
| Tipo de propiedad | Apartamento |
| Superficie habitable | 80 m² |
| Plantas | 4 |
| Dormitorios | 3 |
| Baños | 1 |
| Calidad | Renovado |
| Forma de la propiedad | Erstbezug |
| Año de construcción | 2025 |
| Calefacción | Calefacción eléctrica |
| Fuente de energía | Geotérmico |
5 ZENTRALE NEUBAUWOHNUNGEN - ZEITLOSES DESIGN IM ZENTRUM VON KITZBÜHEL
DATEN
FAKTEN
Fertigstellung Herbst 2025, Wohnfläche von ca. 52 m² bis 133 m², 1 Schlafzimmer bis 2/3 Schlafzimmer, hochwertige Ausstattung, Raffstore, Erdwärme, Eichenböden, 3-fach-Verglasung, Tiefgarage, zentrale Lage
EINHEITEN
Stellplatz
CHARAKTERISTIK
Dieses exklusive Wohnprojekt im Herzen von Kitzbühel vereint modernes Wohnen mit traditionellem Tiroler Stil – eine perfekte Symbiose aus zeitgemäßer Architektur und alpinem Charme.
In zentraler Lage, mitten im pulsierenden Leben der berühmten Gamsstadt, sind alle wichtigen Einrichtungen wie Restaurants, Geschäfte und Freizeiteinrichtungen bequem fußläufig erreichbar.
Genauso wie die weltberühmte Hahnenkammbahn und die Streif. Hier finden Sie Ihr Zuhause im Herzen von Kitzbühel – perfekt für all jene, die urbanes Leben in einer der begehrtesten Alpendestinationen mit alpinem Flair genießen möchten.
Das Projekt umfasst insgesamt fünf hochwertige Wohneinheiten, die in Größen von 52 m² bis 133 m² variieren.
Vom charmanten Erdgeschoss bis hin zum Obergeschoss ist für jeden Geschmack was dabei. Jede Wohnung besticht durch intelligente Grundrisse, die eine optimale Raumnutzung und maximalen Wohnkomfort gewährleisten.
Große Fensterfronten sorgen für lichtdurchflutete Räume und bieten Ausblicke auf die umliegende Bergwelt. Modernste Haustechnik, darunter eine umweltfreundliche Erdwärmeheizung, sorgt für nachhaltiges und energieeffizientes Wohnen.
Eine hauseigene Tiefgarage bietet bequemen Parkraum, während der Tiroler Baustil mit zeitgemäßen Elementen das Gesamtbild dieses Wohnprojekts abrundet.
3,0 %